Добро пожаловать на http://vipplan.ru

Випплан Павловский Посад - это тысячи проектов домов в нашем каталоге!

Вы всегда сможете найти для себя проект дома вашей мечты! Даже если этого не случилось, мы готовы в любую минуту предложить проект индивидуального дома.

Забыли пароль?
Вы еще не регистрировались?

Перейдите по ссылке ниже на страницу регистрации.

Регистрация...

Внимание!!!

В проектную документацию могут быть внесены изменения любой сложности, в соответствии в Вашими пожеланиями!

Полезные статьи

Мероприятия по получению разрешения на строительство в Павловском Посаде

Хотите построить дом в Павловском Посаде? Не знаете с чего начать? Для начала, нужно заказать проект, а после получить разрешение на строительство. ...

Установка систем вентиляции

Проектирование и установка систем вентиляции начинается на этапе создания проекта дома, в котором, наряду с газо- и электрификацией, водоснабжением и системой канализации, проектируется система вентиляции...

Проекты домов и коттеджей > Каталог проектов домов > Одноэтажный дом с мансардой Vg1258

Одноэтажный дом с мансардой Vg1258

Одноэтажный дом с мансардой
Зарегистрируйтесь

Проект № Vg1258


Техническое описание
Общая площадь: 150.9 м2
Высота здания: 8.01 м
Размеры дома: 12.04м×9.7м
Кол-во комнат: 5
Цокольный этаж: нет
Гараж: нет
Мансарда: есть

Kонструкция
Фундамент: Ленточный
Перекрытия: Сборные ж/б плиты
Материал стен: Газобетон

Архитектурный раздел
Конструктивный раздел
АР+КР - 56 000 (Со скидкой 20%)
Срок подготовки проекта — 7 рабочих дней. Проект индивидуального одноэтажного одноквартирного жилого дома с мансардой с размерами здания 12,04x 9,70м. Наружная отделка здания - комбинированная: фасадная штукатурка, дикий камень, деревянные панели. Цоколь- дикий камень. Кровля - керамическая черепица. Наружные стены 1 этажа: газобетонные блоки, утеплитель, отделка диким камнем. Наружные стены мансардного этажа: газобетонные блоки, утеплитель с отделкой фасадной штукатуркой. Частично по фасаду -отделка деревянными панелями. Внутренние стены - из газобетонных блоков. Перегородки выполнить габетонных блоков. Перемычки - монолитные и сварные из профиля проката. Перекрытие над первым этажом - сборные ж/б плиты перекрытий. Пол первого этажа - пол по грунту. Окна - металлопластиковые, выполненные по индивидуальному заказу. Лестница - по металлическому каркасу. Выполняется по индивидуальному заказу.
Генплан застройки участка / Паспорт проекта 7000 руб / 10000 руб
Инженерный раздел (полный) 75500 руб
Смета на строительство 37750 руб
Теплотехнический расчет материалов стен Бесплатно
Стоимость проекта со незначительнми изменениями 66200 руб
Стоимость проекта со средними изменениями* 77600 руб
Стоимость проекта со значительными изменениями** 80600 руб

План первого этажа


Прихожая — 3,42 м2
Холл — 7,55 м2
Гостиная — 30,00 м2
Кухня — 10,80 м2
С/у — 4,14 м2
Бойлерная — 5,95 м2
Кабинет — 12,56 м2

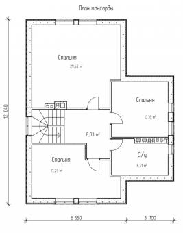
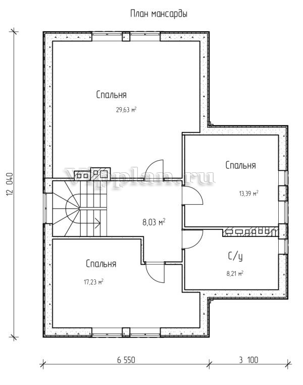
План мансардного этажа


Холл — 8,03 м2
Спальня — 29,63 м2
Спальня — 13,39 м2
С/у — 8,21 м2
Спальня — 17,23 м2
Одноэтажный дом с мансардой Одноэтажный дом с мансардой Одноэтажный дом с мансардой Одноэтажный дом с мансардой
Внесение изменений и привязка к участку строительства

В любой из проектов от компании VIPplan - Павловский Посад по вашему желанию могут быть внесены изменения в материалы стен, материалы наружной отделки дома, а также будет произведена адаптация проекта под конкретный регион строительства (с учетом грунтов региона, геологических особенностей вашего участка и местных климатических условий) - БЕСПЛАТНО !!! (кроме проектов со скидкой и проектов наших партнеров).

Любой из проектов, размещенных на сайте pavlovskiy-posad.vipplan.ru мы можем выполнить из требуемых вам строительных материалов: ячеистый бетон (газобетон, пеноблок), керамоблок, кирпич, шлакоблок, бетонный блок, дерево (брус, клееный брус), каркасная технология (деревянный каркас, металлокаркас (ЛСТК)).

Фасад дома и его наружную отделку так же возможно выполнить с применением различных облицовочных материалов: структурной штукатурки, (с утеплителем и без), сайдингом (пластиковый или металлосайдинг), фиброплитами, кирпича.

 
6 Избранные
проекты

Доставка проектов по России: Москва (Московская область), Санкт-Петербург (Ленинградская область), Краснодар, Ростов-на-Дону, Ставрополь, Сочи, Волгоград, Новосибирск, Белгород, Брянск, Воронеж, Саратов, Хабаровск, Астрахань, Нальчик, Владикавказ, Екатеринбург, Тюмень, Самара, Нижний Новгород, Казань, Пермь, Уфа, Челябинск, Красноярск, Ханты-Мансийск, Иркутск, Курган, Оренбург, Омск, Томск, Барнаул, Новокузнецк, Кемерово, Абакан, Чита, Якутск, Южно-Сахалинск, Петропавловск-Камчатский и страны ближнего зарубежья: Белоруссия, Украина, Казахстан